Nardò è una splendida città della provincia di Lecce, piena di architettura barocca e famosa per la sua fascia costiera che si estende per 22 km comprendendo le località balneari di Santa Maria al Bagno, Santa Caterina e Sant’Isidoro. Ospita anche il Parco naturale regionale Porto Selvaggio e Palude del Capitano, un’area di grande interesse storico-naturalistico la cui costa rocciosa e frastagliata è caratterizzata da pinete, macchia mediterranea e zone umide dove gli abitanti e i turisti respirano aria pulita e si rilassano contemplando la bellezza del mare salentino.
In questa deliziosa città, ti proponiamo in vendita una magnifica dimora storica dei primi anni del ‘900 e ristrutturata nel 2005 circa.
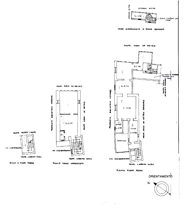
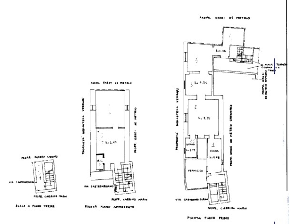
L’immobile di circa 550 mq è diviso in 3 appartamenti, in particolare il primo appartamento è composto da 2 camere da letto, 2 bagni, un ampio e luminoso soggiorno, cucina e un grazioso giardino con prato all’inglese di circa 170 mq, dove puoi prendere il sole in totale privacy o organizzare dei deliziosi barbeque con i tuoi amici e parenti. Lo stabile dispone anche di una dependance con cucina, soggiorno, letto e 1 bagno.
Il secondo appartamento è composto da un ingresso openspace con soggiorno e cucina, 2 camere da letto e 2 bagni. Infine, entrando nel terzo appartamento troviamo un soggiorno con zona pranzo, 2 camere da letto ed 1 bagno.
Gli ambienti sono impreziositi dalle volte a stella che donano un sapore salentino all’immobile situato nel centro storico di Nardò, a soli 5 min a piedi dal signorile castello degli Acquaviva-Personè.
Completa l’immobile un impianto fotovoltaico molto utile per i tempi che corrono.
Desideri trasferirti in una cittadina salentina piena di storia e bellezza e/o fare un investimento turistico mettendo a reddito una parte dell’immobile? Non perdere altro tempo, visiona il virtual tour e contattaci per garantirti il tuo appuntamento di visita.
Nardò dista solo 10 min in auto da Gallipoli e circa 40 min dal capoluogo salentino ossia la meravigliosa città di Lecce. Mentre Santa Maria di Leuca è raggiungibile in 50 min circa.
Temiño Premium Properties è un’agenzia immobiliare specializzata nella compravendita di immobili che raccontano la storia della Puglia. Lavoriamo solo in esclusiva per aiutarti ad acquistare il tuo immobile di pregio in sicurezza, trasparenza e massima riservatezza. Temiño Premium Properties: Your Smart Property Manager!



