Torre Chianca è una località balneare della città di Lecce, famosa per gli edifici in stile barocco tanto da essere denominata “la Firenze del Sud”.
Desideri trovare refrigerio nei mesi estivi nella tua casa al mare, dimenticando le isole di calore presenti nelle città? Noi abbiamo quello che fa al caso tuo! Una deliziosa villetta al mare in vendita a Torre Chianca.
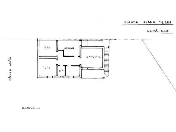
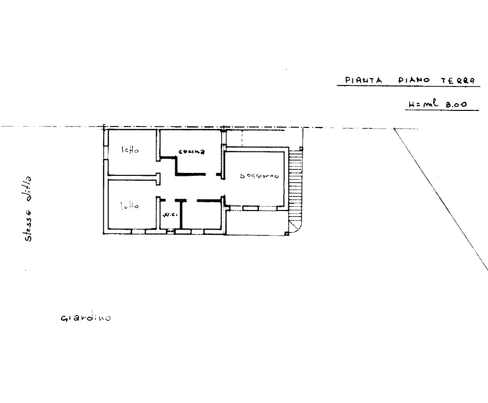
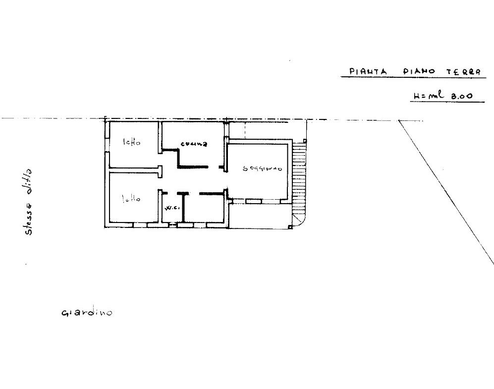
La proprietà è composta da un corpo di fabbrica principale e da una dependance. L’abitazione padronale ha una superficie coperta lorda di circa 120 mq e dispone di 2 porticati di 20 mq complessivi dove è possibile godersi l’aria fresca di fronte al giardino di oltre 950 mq. Entrando nell’abitazione ci si trova nella zona living adiacente alla cucina abitabile, dove è presente un camino a legna ben funzionante. Proseguendo verso il corridoio ci troviamo 3 camere da letto e 3 bagni.
Da una scala esterna, invece, si può salire sul lastricato solare ed ammirare il paesaggio salentino.
Inoltre, vi è una dependance di 30 mq circa composta da una grande camera con bagno ensuite.
La proprietà dispone di 2 entrate, una carraia con cancello automatico e una pedonale con videocitofono ed è immersa in uno spazio piantumato con alberi e siepi, dove è stata ricavata un’area parcheggio per tre o quattro vetture.
Completa l’immobile un impianto d’allarme collegato alla vigilanza privata con quattro telecamere, wifi, acquedotto Pugliese con relativo scarico fognario e per la fornitura dell’acqua calda vi è un impianto con pannelli solari.
Il mare è a soli 200 metri, la famosa città barocca di Lecce è raggiungibile in pochi minuti di auto e tutte le altre località salentine distano tra i 20 e i 40 min di auto.
Temiño Premium Properties è un’agenzia immobiliare specializzata nella compravendita di immobili che raccontano la storia della Puglia. Lavoriamo solo in esclusiva per aiutarti ad acquistare l’immobile che hai sempre desiderato, in totale sicurezza, trasparenza e massima riservatezza. Temiño Premium Properties: your Smart Property Manager!




