La Puglia negli ultimi anni è diventata una delle mete più ambite di persone che cercano un nuovo stile di vita, più sereno, in una terra piena di panorami mozzafiato.
Vi piacerebbe vivere in una villa con grande giardino in campagna lontani dal caos cittadino? Una dimora immersa nella natura che ti faccia sperimentare la calma interiore del tempo che sembra fermarsi e ti consenta di ritrovare l’armonia e la tranquillità che il caos della città ti ha sottratto. Situata nelle campagne di Trepuzzi, a soli 15 Km da Lecce, ti proponiamo in vendita una deliziosa villa con giardino ben curato. Con una posizione ideale per coloro che desiderano vivere immersi nella natura, ma avere comunque facile accesso alle comodità della città, la villa è l’ideale per chi cerca una casa spaziosa, con tutti i comfort moderni, una splendida vita tranquilla, ma non troppo distante per godervi la vivacità dell’atmosfera urbana di Lecce quando lo desiderate.
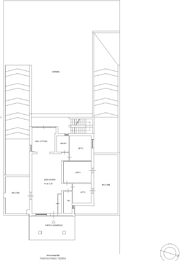
Con una metratura totale di circa 420 mq coperti e oltre 100mq di spazio esterno tra balconi e porticati, la villa si sviluppa su due livelli. Al piano terra, si trovano tre camere da letto spaziose e luminose, due bagni moderni, una zona living accogliente e una cucina completamente attrezzata. Questo livello è caratterizzato da ampie finestre e porte che si aprono sul meraviglioso giardino circostante, offrendo una vista incantevole e creando una connessione diretta con la natura.
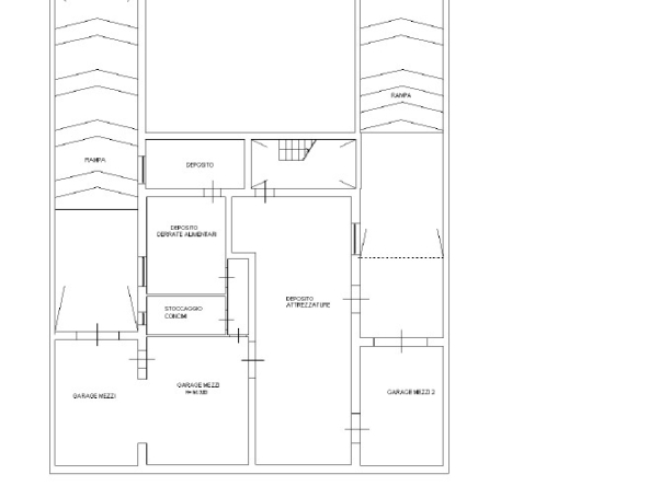
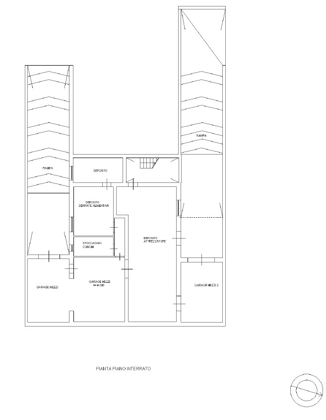
Il piano interrato è un’ulteriore sorpresa, offrendo due camere da letto aggiuntive, una delle quali con bagno privato, e un altro bagno separato, un ripostiglio e un sottoscala con lavanderia. Inoltre, vi sono 2 spaziose aree living di cui una può essere utilizzata come sala giochi, sala cinema o semplicemente come spazio per intrattenere gli ospiti. Questo livello sotterraneo aggiunge una dimensione extra alla villa, fornendo ampi spazi per il relax e la privacy.
Il grande giardino circostante la villa è un vero paradiso per gli amanti della natura. Con prati ben curati e fiori colorati, offre un’oasi di pace e tranquillità. È l’ambiente perfetto per organizzare feste all’aperto, godersi momenti di relax o trascorrere piacevoli serate estive in famiglia e tra amici.
Temiño Premium Properties è un’agenzia immobiliare specializzata nella compravendita di immobili che raccontano la storia della Puglia. Lavoriamo in esclusiva, per aiutarti ad acquistare il tuo immobile di pregio in sicurezza, trasparenza e massima riservatezza. Temiño Premium Properties: Your Smart Property Manager!




