Nel 2019 la “guida blu” di Lega Ambiente ha premiato le spiagge di Porto Cesareo con ben 5 vele.
Con ogni probabilità questi luoghi catturano il cuore di chi li vive anche solo per pochi giorni.
Hai sempre desiderato una casa a pochi passi da questo mare, ma ti frena l’idea di essere in una località caotica? Forse non sai che la costa di porto Cesareo si estende per 14km alternando lidi a luoghi in cui trovare pace e serenità.
Oppure ti piace l’idea di acquistare casa al mare, valorizzarla e metterla a reddito?
Con noi di Temiño Premium Properties puoi comprare la tua casa vacanza in sicurezza, utilizzando i periodi in cui non usi la casa, per locare il tuo immobile e guadagnare bene. In questo modo la tua casa vacanza si paga negli anni con la locazione turistica.
Proponiamo in vendita una deliziosa villa con giardino a Porto Cesareo, precisamente nella località “La Strea”, un lembo di terra abbracciata dal mare, una vera e propria penisola ricca di vegetazione dove la macchia mediterranea si affaccia sulla costa. Circondato da un giardino inglese di circa 600mq, l’immobile è un trilivello con dependance ideali per chi vuole vivere respirando l’aria di questa costa o per chi decide di investire in una rendita data da una struttura ricettiva.
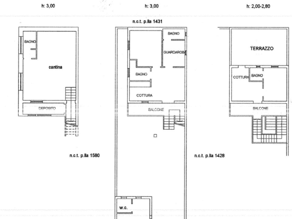
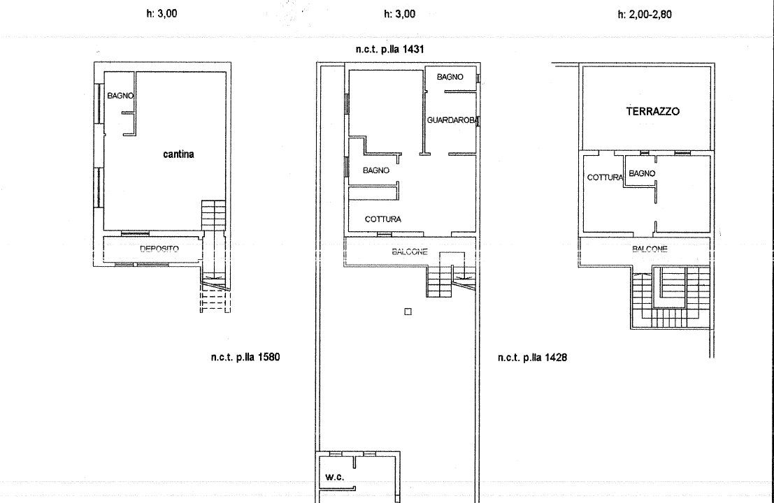
Il piano terra ha una superficie di 72mq e si compone di un soggiorno con angolo cottura, una camera matrimoniale, una camera tripla con bagno en-suite, un altro bagno a servizio e un balcone di circa 10mq. Il primo piano è formato da soggiorno con angolo cottura e un affaccio su un balcone di 10mq, una camera matrimoniale con bagno en-suite, per un totale di 27mq. Completa il piano un’ampia terrazza panoramica di circa 25mq. Posta nel seminterrato c’è una cantina allo stato rustico, con una superficie di 66mq lordi con predisposizione per realizzare un bagno. La casa è dotata di dependance di circa 17mq, completa di angolo cottura e bagno. Tutti gli ambienti sono climatizzati e resi funzionali nelle predisposizioni.
La struttura si presenta in ottime condizioni con il giardino che è completamente attrezzato per diventare la tua zona relax preferita, dove leggere un libro in tranquillità o fare una buona grigliata di pescato del giorno.
Temiño Premium Properties è un’agenzia immobiliare specializzata nella compravendita di immobili che raccontano la storia della Puglia. Lavoriamo solo in esclusiva per aiutarti ad acquistare il tuo immobile di pregio in sicurezza, trasparenza e massima riservatezza. Temiño Premium Properties your Smart Property Manager!