Taranto è una deliziosa città della Puglia. È soprannominata la Città dei due mari per la sua peculiare posizione a cavallo di mar Grande e mar Piccolo. La città si divide in tre parti: il borgo antico o città vecchia è situato su di un’isola, collegata da un’estremità con un ponte denominato “ponte di pietra” che dà al quartiere industriale e dall’altro estremo dell’isola attraverso il ponte girevole si giunge al “borgo Umbertino”.
Sei alla ricerca di una deliziosa casa non lontana dal centro e a pochi passi dal mare, più precisamente dalla stazione navale della marina militare?
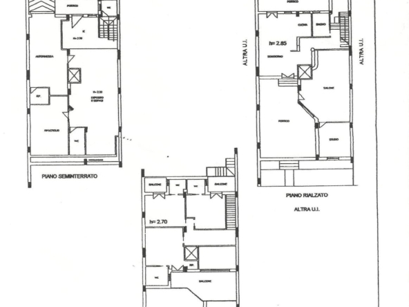
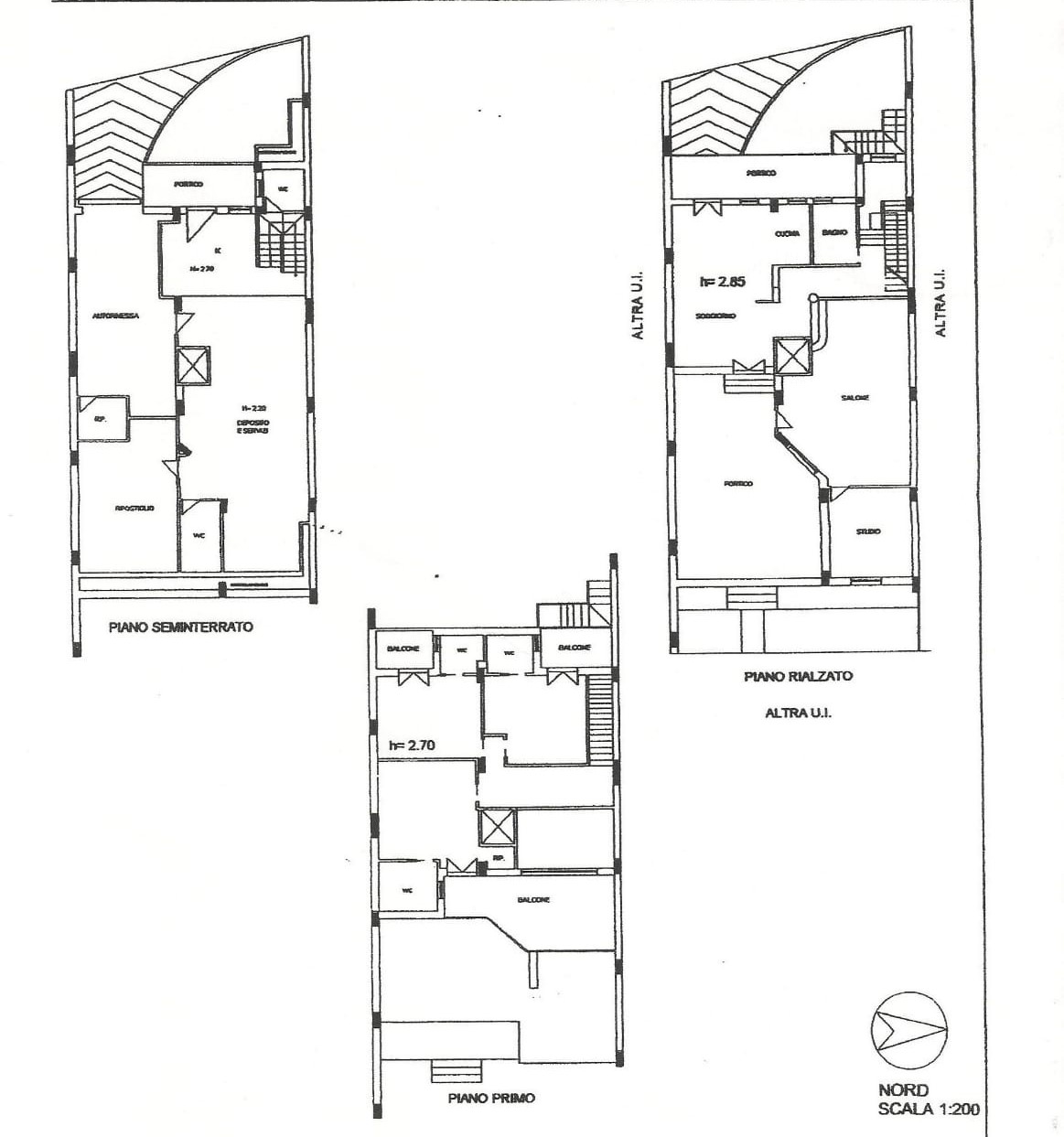
A questo proposito ti proponiamo una splendida villetta con giardino in vendita a Taranto di circa 400 mq coperti lordi di cui 60 mq di porticato e circa 50 mq di balconi e aree scoperte.
Al piano seminterrato di 150 mq circa, trovate una camera da letto, 2 bagni, una cucina e un ampio salotto, dal quale si accede al garage-ripostiglio dove potrai parcheggiare l’auto in tutta sicurezza e riporre le vostre cose in modo ordinato. Questo livello offre la possibilità di avere un’area indipendente per gli ospiti o una comoda sistemazione per i membri della famiglia che preferiscono uno spazio più riservato.
Salendo al piano rialzato di circa 95 mq, verrete accolti da un ampio soggiorno, ideale per trascorrere piacevoli momenti in famiglia o per intrattenere gli amici, un bagno e una cucina open space completamente attrezzata e adiacente ad un’ampia veranda dove potrete godere di momenti di relax in compagnia, magari seduti comodi sulla sedia a dondolo, mentre raccontate una fiaba ai vostri figli in una fresca serata estiva in stile film americano. Un pratico studio aggiunge un ulteriore spazio per lavorare o studiare in tranquillità.
Salendo nella zona notte tramite le scale o l’ascensore, trovate una camera da letto con bagno ensuite e terrazza privata e ulteriori 2 camere da letto con bagno ensuite e balconi privati.
Inoltre, è presente la predisposizione per una stufa a pellet o metano.
1 posto auto coperto e 3 scoperti.
Vi invitiamo a visionare il virtual tour dell’immobile sul nostro sito internet per avere una panoramica completa delle sue caratteristiche. Se siete interessati, non esitate a contattarci per fissare una visita e scoprire di persona la bellezza di questa villetta a Taranto.
Temiño Premium Properties è un’agenzia immobiliare specializzata nella compravendita di immobili che raccontano la storia della Puglia. Con i suoi partner, può aiutarti a realizzare uno splendido progetto per la messa a reddito dell’immobile sul mercato delle locazioni turistiche di lusso. Lavoriamo per aiutarti ad acquistare il tuo immobile di pregio in sicurezza, trasparenza e massima riservatezza. Temiño Premium Properties: your smart Property Manager



